The Stables & The Paddock, Penstowe Park, Kilkhampton, Bude, Cornwall, EX23 9QY

Ref: Lot 2

Loading the bidding panel...

Registration Guide

Finance available on this property

Contact agent


Town & Country Property Auctions Cornwall
Town & Country Property Auctions Cornwall

Unconditional Lot


UNCONDITIONAL LOT Buyers Premium Applies Upon the fall of the hammer, the Purchaser shall pay a 5% deposit and a 3%+VAT (subject to a minimum of £5,000+VAT) buyers premium and contracts are exchanged. The purchaser is legally bound to buy and the vendor is legally bound to sell the Property/Lot. The auction conditions require a full legal completion 28 days following the auction (unless otherwise stated).

Description

Key features

UNIQUE FREEHOLD DEVELOPMENT OPPORTUNITY

LOCATED NEAR BUDE, NORTH CORNWALL

PARTIALLY STARTED FREEHOLD SEVEN PROPERTY DEVELOPMENT IN NEED OF COMPLETION

FULL PLANNING GRANTED

CIL PAID IN FULL

DEVELOPMENT COMPRISES: 2 LUXURY DETACHED HOUSES, 2 COTTAGE STYLE HOUSES, 3 TOWN HOUSES

INFRASTRIUCTURE AND UTILITIES IN PLACE AND MUCH OF GROUND WORK DONE

EASY ACCESS SITE

BREAK UP AND RESALE POTENTIAL

Buyer’s fee applies & - Auction pack available on request

Property description

The Stables Mews and Paddock development.

**For sale by online auction on the 29th of February**

The Opportunity - FREEHOLD DEVELOPMENT IN NEED OF COMPLETION

A genuine retirement sale of a Freehold PARTIALLY COMPLETED DEVELOPMENT presenting great return on investment opportunity. This offers the unique prospect to complete this luxurious development in a sought-after location near Bude and the North Cornish Coast.

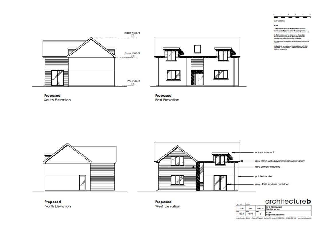
A Freehold partially completed development comprising seven luxury properties being two detached 4 bedroom house, two detached cottage style house and a large stone Mews building for conversion to three town houses, sold with vacant possession.

The Stable Mews enjoys two parts, one being the charming Mews courtyard which will have a development of 2 and 3 bedroom properties and part two, "The Paddock" accessed through the mews, opening out to a select community of 4 luxury (Two sold) detached private residences.

The properties will enjoy off road parking, spacious sizes and the houses with lawned gardens. All properties will be fully double glazed and benefit air source underfloor central heating.

The properties when completed will have good resale value as principle or second homes or make excellent letting or holiday accommodation, each option presenting a good return on investment to any builder developer.

Due to the superb location and the wide market appeal both as main residences or second homes, high demand is expected on this development.

PLANNING INFORMATION

Application No: PA18/01359

Application No: PA19/02816

Planned specifications available on request, although we assume there would also be considerations given to new specs.

1/ Detached four-bedroom house with plans drawn as:

Reception Hall & WC Cloakroom
Open plan Kitchen diner with sliding doors to garden x 2
Lounge with French sliding doors to garden
First floor
4 Bedrooms with one being ensuite
Family Bathroom
All services on site to this plot

Current end value £440K (Based on recently sold)

2/ Detached four-bedroom house with plans drawn as:

Reception Hall & WC Cloakroom
Open plan Kitchen diner with sliding doors to garden x 2
Lounge with French sliding doors to garden
First floor
4 Bedrooms with one being ensuite
Family Bathroom
The base is laid and all services are on site to this plot

Current end value £440K (Based on recently sold)

3/ Town House with plans drawn as:

Living Room
Kitchen Dining Room
Bathroom
Three double bedroom with one being en-suite

Current end value £325K (Based on local comparable and previous sales)

4/ Town House with plans drawn as:

Open Plan Kitchen Living Room
Bathroom
Two double bedrooms

Current end value £265K (Based on local comparable and previous sales)

5/ Town House with plans drawn as:

Large Living Dining Room
Kitchen on first floor
Bathroom
Two double bedrooms

Current end value £265K (Based on local comparable and previous sales)

6/ Detached Cottage style Single storey House with plans drawn as

Open plan kitchen living Room
Shower Room
Two double bedrooms

Current end value £225K (Based on local comparable and previous sales)

7/ Detached Cottage style House with plans drawn as

Open plan kitchen living Room
Bathroom
Two double bedrooms with Jack & Jill ensuite

Current end value £245K (Based on local comparable and previous sales)

NB: Current end values given as guide prices

All mains water, electricals, telecoms and fibre broadband) on site

CIL (Community Infrastructure Levy) Paid I full

The site so far has been Architect supervised.

Please note photos, specification and measurements are for guidance purposes only

No further works will be taking place on the development prior to the sale.

Tenure - The property is offered for sale freehold and with Vacant Possession on completion.

Viewing strictly by appointment with the local agent: NK Estate Agent

Local Authority

The local authority is Cornwall County Council, County Hall, Treyew Road, Truro, Cornwall, TR1 2AY Telephone: 0300 1234 100

Agents Notes

None of the services or appliances, plumbing, heating or electrical installations have been tested by the selling agent. Any maps used on the details are for identification purposes only.

None of the statements contained in these particulars as to this property are to be relied on as statements or representations of fact. All figures, measurements, floor plans & maps are for guidance purposes only.

The property is sold subject to and with the benefit of all outgoings, rights of way, easements & way leaves there may be, whether mentioned in these general remarks and stipulations or particulars of sale

Buyers Premium

* Plus 3% Buyers Premium plus VAT

Pre Auction Offers Are Considered

The seller of this property may consider a pre-auction offer prior to the auction date.  All auction conditions will remain the same for pre-auction offers which include but are not limited to, the special auction conditions which can be viewed within the legal pack, the Buyer’s Premium, and the deposit.  To make a pre-auction offer we will require two forms of ID, proof of your ability to purchase the property and complete our auction registration processes online.  To find out more information or to make a pre-auction offer please contact us.

Special Conditions

Any additional costs will be listed in the Special Conditions within the legal pack and these costs will be payable on completion. The legal pack is available to download free of charge under the ‘LEGAL DOCUMENTS’.  Any stamp duty and/or government taxes are not included within the Special Conditions within the legal pack and all potential buyers must make their own investigations.


* The Guide Price given is an indication as to where the Reserve is currently set. The Reserve is the minimum price that the auctioneer is authorised by the vendor to sell the property for. It is subject to change throughout the marketing period. Where the Guide Price is a single figure, the current Reserve will not be more than 10% above that single figure, and where a price range is given (i.e. £50,000 - £55,000), the Reserve will not exceed the upper level of the range. It is not necessarily what the auctioneer expects it will sell for.

We would like to point out that all measurements, floor plans and photographs are for guidance purposes only (photographs may be taken with a wide angled/zoom lens), and dimensions, shapes and precise locations may differ to those set out in these sales particulars which are approximate and intended for guidance purposes only.

These particulars, whilst believed to be accurate are set out as a general outline only for guidance and do not constitute any part of an offer or contract. Intending purchasers should not rely on them as statements of representation of fact, but must satisfy themselves by inspection or otherwise as to their accuracy. No person in this firms' employment has the authority to make or give any representation or warranty in respect of the property.

Viewing: Due to the nature and condition of auction properties, the auctioneers highlight the potential risk that viewing such property carries and advise all to proceed with caution and take necessary requirements to ensure their own safety whist viewing any lots offered. Viewings are conducted entirely at the potential buyers own risk, these properties are not owned or controlled by Town & Country Property Auctions and the auctioneers will not be held liable for loss or injury caused while viewing or accessing the lot. Due to the nature of some auction properties, electricity may not be turned on, therefore viewing times are restricted. Viewers will need to bring their own lighting/ ladders if wanting to inspect cupboards, cellars and roof spaces. Some viewings are carried out by third party agents and we will endeavour to give appropriate notice should the published viewing time change. Town & Country Property Auctions will not be liable for any costs or losses incurred due to viewing cancellations or no shows.

All auctioneer fees and deposits stated are non-refundable. The deposit will be applied toward the final purchase price. Auctioneer fees, while not contributing to the purchase price, will still be included in the total chargeable consideration of the property when calculating Stamp Duty Land Tax, Land Transaction Tax, or Land and Buildings Transaction Tax (as applicable depending on whether the property is located in England, Wales, or Scotland).

Register for auction alerts

By subscribing here you agree to receive relevant emails, news and updates from Town & Country Property Auctions. You can unsubscribe at any time.

Register for auction alerts

Selling

No fuss, fast & free*

Town and Country offer a free selling service to a growing number of people choosing to sell their property quickly and easily through auction.

*Contact individual regions for cost

Buying

How to bid

Our buying at auction guide will help you throughout the process providing you with guidance to confidently secure your purchase.