Atlantic Cottage, 78 Fore Street, Port Isaac, Cornwall, PL29 3RF

Ref: Lot 4

Loading the bidding panel...

Registration Guide

Finance available on this property

Unconditional (Buyer's Premium)


UNCONDITIONAL LOT Buyers Premium Applies Upon the fall of the hammer, the Purchaser shall pay a 5% deposit and a 3%+VAT (subject to a minimum of £5,000+VAT) buyers premium and contracts are exchanged. The purchaser is legally bound to buy and the vendor is legally bound to sell the Property/Lot. The auction conditions require a full legal completion 28 days following the auction (unless otherwise stated).

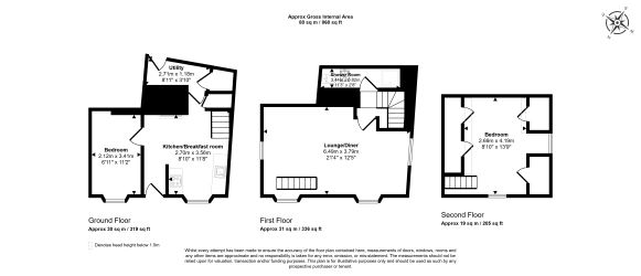
Description

Atlantic Cottage, located just steps from Port Isaac harbour, is a surprisingly roomy two-bedroom home that has been in the same family for generations. While it has been updated with modern comforts, it still preserves its original charm, including flagstone floors and exposed wooden beams. Currently operating as a successful holiday rental, the cottage features open-plan living on the upper floor to take advantage of the harbour views. It also includes the rare bonus of private off-road parking for two cars and an attached garage. There is also the potential to add a further bedroom and bathroom to the back of the garage, subject to planning.

Two bedrooms, open-plan living area, and a family bathroom
Recently refurbished to a high standard
Proven track record as a successful holiday let
Private off-road parking for two vehicles and an attached garage for storage
Contents available by separate negotiation (excluding personal effects and artwork)
Approximately 848 sq. ft (78.7 sq. m)
EPC Rating: Band G

Atlantic Cottage is a charming period home situated at the top of Fore Street in the heart of Port Isaac. Rich in character, the cottage showcases traditional features such as original flagstone flooring and exposed beams, while seamlessly blending modern and classic interiors. This delightful two-bedroom property enjoys sea views from both the first and second floors and boasts a generous open-plan living space on the first floor along with a well-equipped modern kitchen.

Currently operating as a successful holiday let, Atlantic Cottage also offers excellent potential as a full-time residence. One of its rare and valuable assets is private off-road parking for up to two vehicles, a significant advantage in this historic coastal village.

Nestled on the rugged North Cornwall coast, Port Isaac is a postcard-perfect fishing village known for its narrow winding streets, whitewashed cottages, and rich cultural heritage. The village has gained national recognition as the filming location for ITV’s Doc Martin, and is home to the popular sea shanty group The Fisherman’s Friends. Residents and visitors alike enjoy a welcoming local community, a selection of everyday amenities, and a vibrant dining scene, including two renowned restaurants by chef Nathan Outlaw. With access to stunning coastal walks and a range of outdoor pursuits, Port Isaac is a prime location for both relaxation and adventure.

Services: The property is connected to mains water, electricity, and drainage. Heating is provided via wall-mounted electric panels.

Contents: Contents are available by separate negotiation, excluding personal effects and artwork.

Viewings available via appointment with Town & Country Property Auctions Cornwall

Buyers Premium

* Plus 3% Buyers Premium plus VAT

Pre Auction Offers Are Considered

The seller of this property may consider a pre-auction offer prior to the auction date.  All auction conditions will remain the same for pre-auction offers which include but are not limited to, the special auction conditions which can be viewed within the legal pack, the Buyer’s Premium, and the deposit.  To make a pre-auction offer we will require two forms of ID, proof of your ability to purchase the property and complete our auction registration processes online.  To find out more information or to make a pre-auction offer please contact us.

Special Conditions

Any additional costs will be listed in the Special Conditions within the legal pack and these costs will be payable on completion. The legal pack is available to download free of charge under the ‘LEGAL DOCUMENTS’.  Any stamp duty and/or government taxes are not included within the Special Conditions within the legal pack and all potential buyers must make their own investigations.

Key Feature 1

PROVEN HOLIDAY LET INCOME

Key Feature 2

FULLY REFURBISHED & READY TO LET

Key Feature 3

POTENTIAL TO ADD VALUE


* The Guide Price given is an indication as to where the Reserve is currently set. The Reserve is the minimum price that the auctioneer is authorised by the vendor to sell the property for. It is subject to change throughout the marketing period. Where the Guide Price is a single figure, the current Reserve will not be more than 10% above that single figure, and where a price range is given (i.e. £50,000 - £55,000), the Reserve will not exceed the upper level of the range. It is not necessarily what the auctioneer expects it will sell for.

We would like to point out that all measurements, floor plans and photographs are for guidance purposes only (photographs may be taken with a wide angled/zoom lens), and dimensions, shapes and precise locations may differ to those set out in these sales particulars which are approximate and intended for guidance purposes only.

These particulars, whilst believed to be accurate are set out as a general outline only for guidance and do not constitute any part of an offer or contract. Intending purchasers should not rely on them as statements of representation of fact, but must satisfy themselves by inspection or otherwise as to their accuracy. No person in this firms' employment has the authority to make or give any representation or warranty in respect of the property.

Viewing: Due to the nature and condition of auction properties, the auctioneers highlight the potential risk that viewing such property carries and advise all to proceed with caution and take necessary requirements to ensure their own safety whist viewing any lots offered. Viewings are conducted entirely at the potential buyers own risk, these properties are not owned or controlled by Town & Country Property Auctions and the auctioneers will not be held liable for loss or injury caused while viewing or accessing the lot. Due to the nature of some auction properties, electricity may not be turned on, therefore viewing times are restricted. Viewers will need to bring their own lighting/ ladders if wanting to inspect cupboards, cellars and roof spaces. Some viewings are carried out by third party agents and we will endeavour to give appropriate notice should the published viewing time change. Town & Country Property Auctions will not be liable for any costs or losses incurred due to viewing cancellations or no shows.

Loading legal documents ...

Register for auction alerts

By subscribing here you agree to receive relevant emails, news and updates from Town & Country Property Auctions. You can unsubscribe at any time.

Register for auction alerts

Selling

No fuss, fast & free*

Town and Country offer a free selling service to a growing number of people choosing to sell their property quickly and easily through auction.

*Contact individual regions for cost

Buying

How to bid

Our buying at auction guide will help you throughout the process providing you with guidance to confidently secure your purchase.